Description
Conteneur Bureau 21 m2 avec WC + Kitchenette
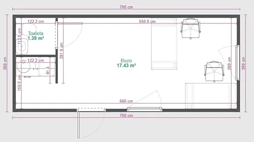
Dimensions:
longueur extérieure 7,0 m
largeur extérieure, 3,0 m
hauteur intérieure 2,6-2,5 m
SPÉCIFICATIONS TECHNIQUES
- Structure en acier dans le plancher – profil 60x60x3
- Murs, toiture : panneau sandwich épaisseur 100 mm avec âme en polystyrène. Transmission thermique 0,38 W/m2K.
- Sol : panneau sandwich de 100 mm d’épaisseur avec âme en polystyrène. Transmission thermique 0,38 W/m2K.
- Toit à une pente
- Sol : panneau sandwich + panneau OSB 15 mm + moquette PVC 2,2 mm
- Installation électrique (fusibles 230V, prises x5, interrupteur x1, luminaire 4)
- installation de ventilation 2 x grilles
- Porte d’entrée en acier 80×200 1 pc
- Portes intérieures en acier 80×200 1 pc
- Fenêtre PVC UR 110×110 2 pcs
Équipement
cuvette WC
meuble avec évier
chauffe-eau électrique 5L
Kitchenette lot de 4 meubles
Le prix ne comprend pas :
- Livraisons – (Livraison sous 15 jours Ouvrables)
- Préparation du terrain (durcissement de la zone, pose et nivellement de 15 blocs de béton selon les directives envoyées
- Conception et documentation technique
- Raccordements – eau et égouts













Avis
Il n’y a pas encore d’avis.